Accéder au contenu principal

Hébergements

Construction de dix townhouses à Bernex.

La densification de la zone villa, une opportunité pour de nouvelles typologies d’habitats
Avec l'augmentation des surfaces constructibles dans les zones villas, passant de 25 % à 45 % de la surface de la parcelle, de nouvelles problématiques architecturales ont émergé. La gestion du parking des voitures, les vues croisées, et les espaces de distributions extérieurs sont devenus les thèmes essentiels de ces projets. Ainsi, la forme traditionnelle du logement doit être repensée pour répondre à ces contraintes, tout en offrant une qualité de vie optimale. Cela implique une réflexion approfondie sur l'organisation de l'espace, afin d'exploiter au mieux les contraintes imposées par la réglementation, tout en créant des espaces intérieurs et extérieurs agréables et fonctionnels.

Client

Investisseur privé

Année

2017

Lieu

Bernex. CH

La densification de la zone villa, une opportunité pour de nouvelles typologies d’habitats
Avec l'augmentation des surfaces constructibles dans les zones villas, passant de 25 % à 45 % de la surface de la parcelle, de nouvelles problématiques architecturales ont émergé. La gestion du parking des voitures, les vues croisées, et les espaces de distributions extérieurs sont devenus les thèmes essentiels de ces projets. Ainsi, la forme traditionnelle du logement doit être repensée pour répondre à ces contraintes, tout en offrant une qualité de vie optimale. Cela implique une réflexion approfondie sur l'organisation de l'espace, afin d'exploiter au mieux les contraintes imposées par la réglementation, tout en créant des espaces intérieurs et extérieurs agréables et fonctionnels.

Client

Investisseur privé

Année

2017

Lieu

Bernex. CH

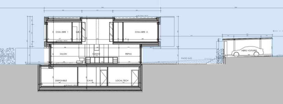
Une typologie atypique de maison en longueur

En réponse aux nouvelles contraintes de la densification des zones villas, nous avons créé une maison en longueur, baignée de lumière zénithale.

Les espaces au cœurs de la maison : l’espace cuisine, les escaliers et les salles-de-bain sont généreusement éclairés par de la lumière zénithale.

L’espace en sous-sol est lui aussi éclairé par de la lumière naturelle apportée grâce à un sol de terrasse translucide.

Un jeu de décalage afin d’assurer la privacité visuelle à toutes les maisons
Un travail conséquent de décalage en plan et coupe permet d’assurer l’intimité des habitants en limitant les vues croisées. La réalisation de murs de séparation extérieurs renforce cette privacité en créant des patios.
La possibilité de prolonger les espaces intérieurs vers l’extérieur est ce qui différencie une villa d’un appartement

Dans ce projet de dix Townhouses, la volonté du projet a été d’offrir les qualités caractéristiques des maisons individuelles à toutes les maisons. Le traitement des espaces extérieurs en tant que prolongation des espaces intérieurs de la maison a été un des thèmes principaux du projet.

Au sud, un patio prolonge l’espace de salle-à-manger, tout en assurant l’intimité des usagers, alors que du côté nord, le jardin prolonge l’espace du séjour.